Volvo 700, 900, S/V90 (95-98) relaterade ämnen. OBS! vid motorproblem försök att ange vad du har för motor i bilen...t.e.x B230A, K, E, F och så vidare....

Moderator: Moderatorer

av Alfp
#969457
Hej. Har en 745 92. Bilen har stannat, bensinpumpen går ej, när jag tog bort pumpen och ger den 12 volt så går den. Mätt strömmen vid kontaktstycket hö i bagageutrymmet, har 7, 4 volt när tändningen är på. Jag har förmodligen spänningsfall någonstans, finns det fler kontaktstycken mellan relä och kontakten i bagaget.
Tips
MVH Affe
Användarvisningsbild
av lennarte
#969467
Du kan ta ut felkoder på denna och få en uppfattning om var felet kan vara. Se här,
http://mekbiten.se/Egna_dokument/felkoder_740.pdf
Det är Rex/Regina du har. En lätt grej att kolla först, prova med startgas. Spruta in gasen direkt i insugningsröret genom den lilla vakuumslangen som går till bränsletrycksregulatorn vid bränslerailsen. Om motorn inte startar på startgas, finns det varken gnista eller bensin så är vevaxelgivaren en given kandidat. Den kan man "prova" om man gör "diagnosfunktion 2" för tändsystemet enligt anvisningar ovan. 7,2V i kontaktstycket kan vara kabeln till tankmätaren. Du ha bara ström till pumpen när startmotorn "går" och en kort stund just när du "slår på" tändningen. Om motorn startar på startgas, men pumpen inte går, är reläet till bränslepumpen en kandidat. Sitter bakom säkringarna i mittkonsollen.
Du har väl kollat säkringarna.... Nr 1 och 11
http://www.vlvworld.com/indexframe.html ... 00_0_3.htm
Bränslepumprelät är E, det vita till vänster

Mvh
Lennart
av Alfp
#969581
Tack för tips Lennart!
Jag trodde först att det var bensinpumpsrelät som var trasigt eftersom jag inte hörde något "surr" vid tändning.
Har kollat relät och det slår ("klickar") när jag strömsätter det så relät verkar fungera.
Då trodde jag att det var pumpen som lagt av men efter bortmontage och provkörning direkt mot batteriet så fungerar den fint.Står lite handfallen nu om vad jag ska kunna kolla.

Jag är rätt säker på att det är kabeln till pumpen jag mäter 7,5 V på vid tändningsläget, så misstänker att det är spänningsfallet som orsakar att pumpen inte går... Låter det vettigt? I så fall var är troliga brottställen?
Användarvisningsbild
av lennarte
#969623
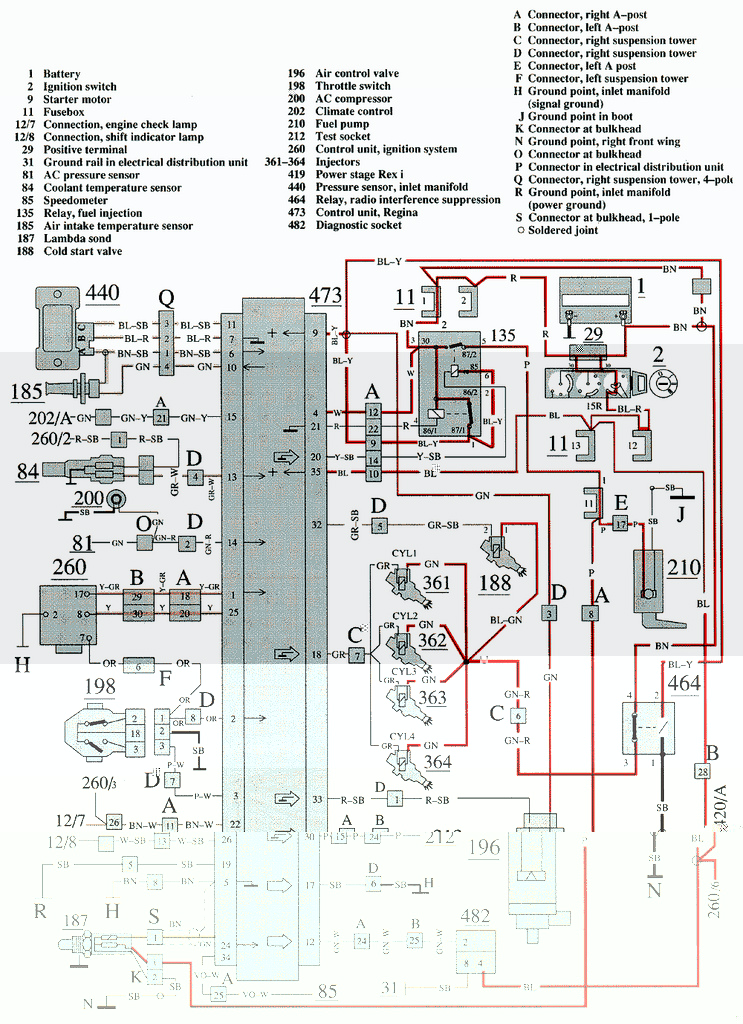
Du kan inte mäta någon spänning vid pumpen såvida du inte har någon som "kör" på starten eller att motorn går. Har du "byglat reläet så ska du ha 12V vid pumpen. Strömmen till relät är ju batteriström som kommer via en kopplingsplint (29 på bilden) via säkring 1 till ingång 30 på relät. Där är alltså alltid spänning (12V) på ingång 30 på bränslereläet. Pumpen är sedan säkrad med säkring 11. Hur många volt har du på dom ställena? Ser du på bilden så visar den en kopplingsplint vid vänster A-stolpe "E", sedan visar den inga fler. Manöverströmmen går genom en plint "A" vd höger A-stolpe
Rexregina.jpg
Elschema Rex/Regina
Rexregina.jpg (504.62 KiB) Visad 579 gånger
Mvh
Lennart
av Alfp
#971143
Tack igen!
Har nu plockat ihop bensinpump och surret ar tillbacka nar tandningen slas pa :D , motorn startar men stannar strax darefter : (.
Verkar som att branslepumpen kor igang vid start men sedan inte fungerar sa lite battre en tidigare men inte bra nog...
Barjar bli riktigt forbryllad, vad hittar jag pa nu?
Affe
Användarvisningsbild
av lennarte
#971327
Kolla relät på expansionskärlet för kylarvattnet, det styr om spridarna ska öppna.

Mvh
Lennart
av Alfp
#976469
Kollar och testar snart över en månad, frun blir galen på mig. Pumpen går ibland när jag vrider på tändning. Är inne på att det är brott/glapp på ledningen från pumpen. Vet var el plinten i bakluckan finns, ledningen fortsätter på vänster sida i bilen. Är det någon som vet vart nästa plint sitter?
Mycket tacksam för svar
Alfp
Användarvisningsbild
av lennarte
#976524
Har du kollat på jordningen i "skuffen"? "J" på schemat ovan, även på tankgivaren. Kan vara rostigt som bara den
Byta bakbromsar på min V60cc 2018

Slutade med att jag köpte 9v batteri och kl&a[…]

ja surt är det men en del av de 12% ligg[…]

Låter inte troligt och ska isåfall fin[…]

Sommartider HEJ, HEJ

Sommaren har av någon anledning inte kommit […]