Volvo 700, 900, S/V90 (95-98) relaterade ämnen. OBS! vid motorproblem försök att ange vad du har för motor i bilen...t.e.x B230A, K, E, F och så vidare....

Moderator: Moderatorer

av labane
#117257
japp det stämmer det du säger alla värdena är rätt...funderar på det där med relät hittar inget sånt mvh johan.....så den rosa kabeln är inget o bry sig om??
Användarvisningsbild
av Jocke S.
#117261
Gör enligt följande:

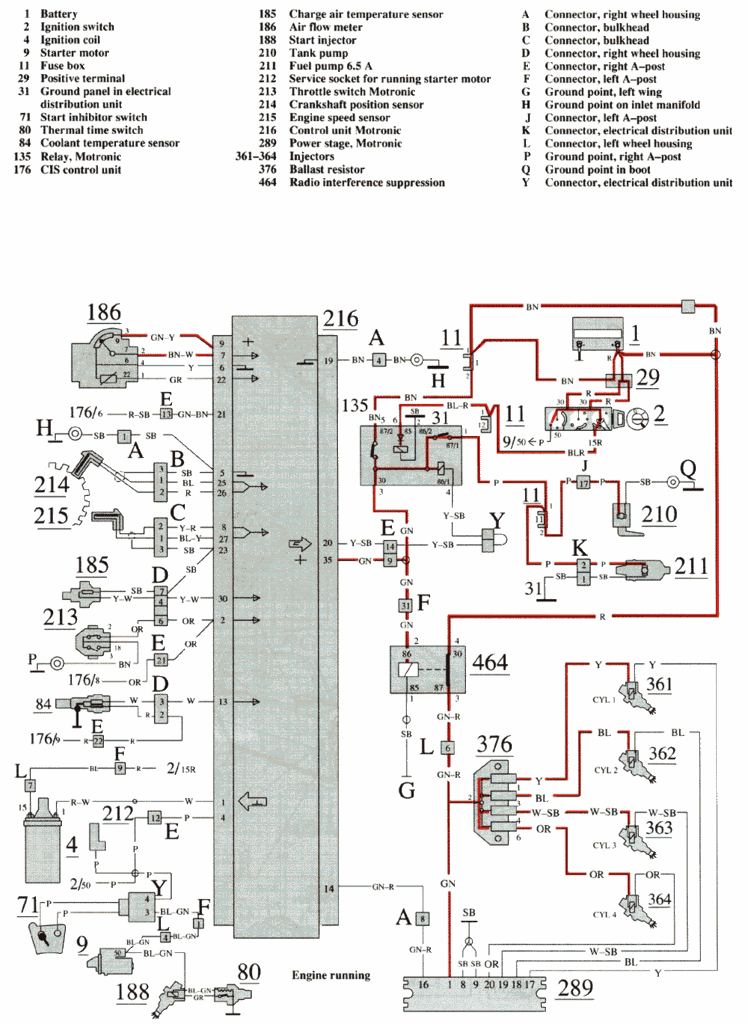
Diagnoskabeln i uttag 2, tändning på, tre tryck på diagnosknappen.

Nu skall bl.a. spridarna börja "smattra"...
Lägg ett finger på spridarna, så känner du att dom vibbrerar = dom öppnar och stänger.
av labane
#117263
det uttaget sitter??? mvh johan
av labane
#117264
bilen är en 1988 och motorn är från en 85:a enligt förra ägaren... hittar inget utttag har letat...mvh johan
Användarvisningsbild
av Jocke S.
#117288
labane skrev:bilen är en 1988 och motorn är från en 85:a enligt förra ägaren... hittar inget utttag har letat...mvh johan
Det förklarar varför du inte har något diagnosuttag. Det kom nämligen fr.o.m. sista modellen -88.
Användarvisningsbild
av Jocke S.
#117293
Om nu allt stämmer med spänning till spridarna, så bör felet ligga i jordningen till dessa. Jordningen sker via styrenheten (bränsle)
Senast redigerad av 1 Jocke S., redigerad totalt 0 gånger.
av ZeoN
#117377
kolla alla jordkablar ordentligt engång till ....
Användarvisningsbild
av Sparkz
#117385
av labane
#119007
Hur mäter jag jord signalen? mvh johan
Användarvisningsbild
av Jocke S.
#119095
Nu är jag lite osäker... :???: ...därför min fråga..?

-Har du en "mojäng" sittandes uppe på kåpan mellan motorn och växellådan, med en kabel på som leder upp till en kontakt?
Eller, har du en kontakt på fördelaren med en kabel instucken..?

..Ja 90% ned är ju busenkelt att uppnå[…]

Bensinpriser v2

Går fort uppåt Tankade 180 li[…]

Volvo car UX

Kört från Norrköping till Stockhol[…]

Tankade blankdiesel i grannbyn som har höjt m[…]